Casa indipendente in vendita

Reggio Di Calabria, Via Via Stazione San Gregorio - San Gregorio
€ 99.000
4 locali 4 locali
206 Mq 206 Mq
2 bagni 2 bagni

Casa indipendente in vendita

Reggio Di Calabria, Via Via Stazione San Gregorio - San Gregorio

Descrizione annuncio

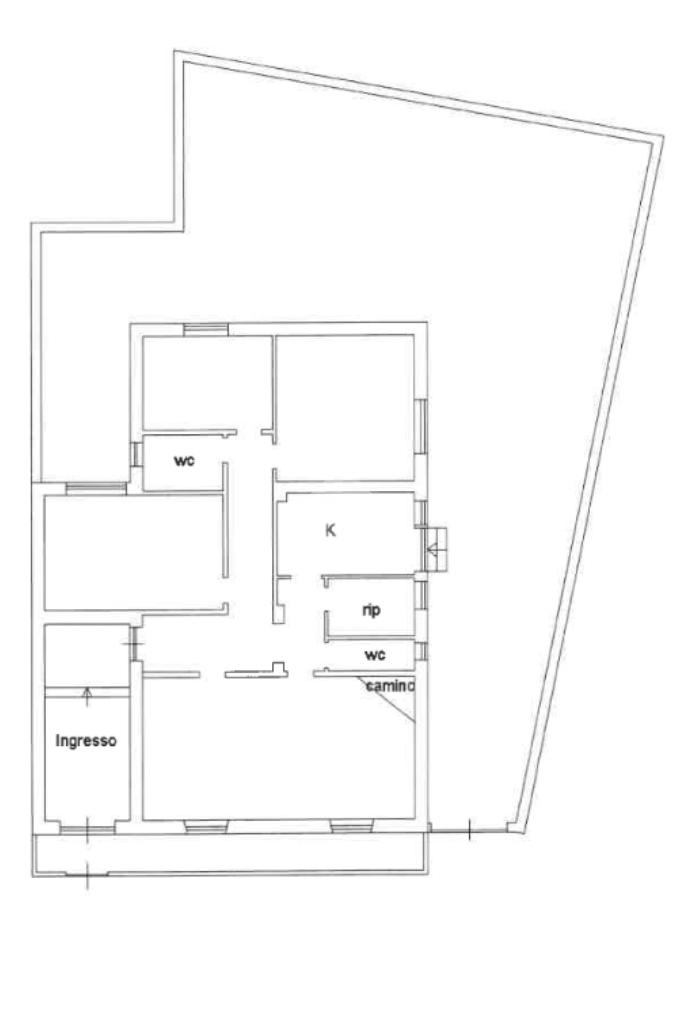
San Gregorio, nel comune di Reggio Calabria, casa indipendente su un unico livello con giardino e garage.

Con una superficie di 211 mq catastali, questa proprietà offre ampi spazi interni ed esterni.

All'interno, l'immobile dispone di una cucina, un soggiorno accogliente con camino, tre camere da letto, due bagni e un ripostiglio.
La corte esterna è arricchita da un giardino, ideale per momenti di relax all'aperto, e un garage che offre comodità e sicurezza.

Costruita nel 1965, la casa necessita di interventi di ristrutturazione, permettendo di personalizzare gli ambienti secondo i propri gusti.

Una soluzione abitativa che unisce la tranquillità di una casa indipendente alla comodità di essere a pochi passi dai servizi cittadini e dallo svincolo autostradale.

Mostra tutto

Nelle vicinanze

Trasporto pubblico Trasporto pubblico
Reggio di Calabria San Gregorio
Reggio di Calabria San Gregorio
340 m
Reggio di Calabria Omeca
Reggio di Calabria Omeca
3,0 Km
Vecchia SS.106-S.Greg. Ch.sa S Greg s/n
Vecchia SS.106-S.Greg. Ch.sa S Greg s/n
60 m
Vecchia S.S.106-S.Gregorio, 32 Chiesa
Vecchia S.S.106-S.Gregorio, 32 Chiesa
60 m
Reggio Di Calabria Aeroporto
Reggio Di Calabria Aeroporto
700 m
Scuole Scuole
Scuola Primaria "S.Gregorio"
120 m
Scuole
210 m
Scuola Primaria S.Leo
1,4 Km
Scuola dell'Infanzia Nosside
1,5 Km
Scuola Media Nosside-Pythagoras
1,6 Km
Farmacia Farmacia
Farmacia Bova C.
1,7 Km
Farmacia Sant'Agata
2,3 Km
Supermercati Supermercati
EuroSpin
1,4 Km
Ipercoop
1,8 Km
Supermercati
1,8 Km
Lidl
2,5 Km
Spaccio Alimentare
2,8 Km
Negozi Negozi
Tata Italia
1,7 Km
Cotton&Silk
1,7 Km
Golden Point
1,8 Km
Zuiki
1,8 Km
Tally Weijl
1,8 Km
Bar Bar
Bar Zefhir
1,7 Km
Elsa Bar
1,9 Km
Occhio Grill
1,9 Km
Ristoranti Ristoranti
Pizzeria Settimo Cielo
80 m
Villa Blanche Ricevimenti
1,6 Km
Mostra tutto

Caratteristiche

Rif.:
61160779
Piano:
Terra con giardino di 1
Totale piani:
1
Box:
1
Posti auto:
1
Camere da letto:
3
Mostra tutto
Prezzo Prezzo
€ 99.000
Rata mutuo Rata mutuo
€ 462 / mese
Spese annue Spese annue
€ 0
Proponi il tuo prezzoProponi il tuo prezzo

Classe Energetica

F
F
F
F
F
F
F
F
F
EP globale non rinnovabile:
158.65 kW h/m² anno
EP globale rinnovabile:
8.04 kW h/m² anno
EP invernale del fabbricato:
EP estiva del fabbricato:
Anno di costruzione:
1965
Riscaldamento:
Autonomo
Tipo impianto:
A radiatori
Tipo alimentazione:
Metano

Ti interessa visionare l'immobile?

Fissa un appuntamento  Fissa un appuntamento

Richiedi informazioni

Clicca su Leggi per aprire l'informativa
* Questi campi sono obbligatori

Calcola il tuo mutuo

Semplice e senza impegno
Anticipo

( % )
Mutuo

( % )

pochi semplici passi

inserisci i tuoi dati
Questionario completato
Grazie per aver richiesto un appuntamento senza impegno con un nostro Consulente del Credito e Assicurativo.

Hai inserito correttamente tutti i dati necessari e a breve riceverai una e-mail con un link da convalidare per inviare i tuoi dati.
Affiliato
Studio Reggio Calabria Sud Srl
Viale Aldo Moro, 101A/B 89129 Reggio Di Calabria (RC)

Il nostro staff


  • Giovanni Bottafava
    Affiliato

  • Annamaria Mauro
    Coordinatrice

  • Francesco Calafiore
    Collaboratore

  • Mario Calzone
    Collaboratore

  • Martina Musolino
    Coordinatrice
Viale Aldo Moro, 101A/B 89129 Reggio Di Calabria (RC)
Zona: Reggio Calabria - Sud
Mostra su mappa
Orari: dal lunedì al venerdì 8:30-13:00/15:00-19:00; sabato 8:30 - 13:00
Affiliato
Studio Reggio Calabria Sud Srl
Viale Aldo Moro, 101A/B 89129 Reggio Di Calabria (RC)

2026 Tecnocasa Franchising S.p.A. - P. IVA 08365160152 - Via Monte Bianco 60/A 20089 Rozzano (MI). Ogni agenzia ha un proprio titolare ed è autonoma. Privacy policy | Policy utilizzo | Cookie policy