Quadrilocale in vendita

Reggio Di Calabria, Via Gaetano Cingari - Reggio Calabria Sud
€ 109.000
4 locali 4 locali
131 Mq 131 Mq
2 bagni 2 bagni

Quadrilocale in vendita

Reggio Di Calabria, Via Gaetano Cingari - Reggio Calabria Sud

Descrizione annuncio

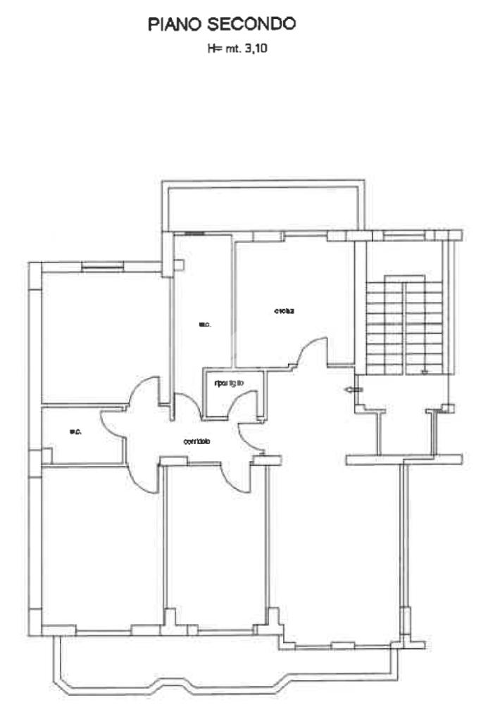
In via Gaetano Cingari, traversa del Viale Aldo Moro, proponiamo un appartamento in vendita che unisce comfort e funzionalità.

Situato al secondo piano di un edificio che si sviluppa su cinque piani, l'immobile si estende su una superficie di 131 mq catastali, offrendo ampi spazi per ogni esigenza abitativa.

Costruito nel 1967 e ristrutturato nel 2005, l'appartamento è composto da quattro locali ben distribuiti, ideali per accogliere una famiglia o per chi desidera spazi versatili.

L'ingresso ci accoglie nella zona giorno dell'appartamento, caratterizzato da una cucina abitabile e da un comodo soggiorno, entrambi gli ambienti hanno accesso ai balconi.
Un piccolo disimpegno ci conduce alla zona notte, composta da tre camere da letto, due bagni ed un ripostiglio.

La pavimentazione è in gréss porcellanato e si estende per tutto l'appartamento ad eccezione dei bagni; gli infissi sono in legno e doppio vetro camera, ideali per garantire un ottimo isolamento acustico e termico.

L'immobile gode di riscaldamento autonomo grazie alla presenza degli elementi in tutti gli ambienti.

Completa la proprietà un posto auto all'interno della corte condominiale posto al piano terra.

La posizione strategica consente di raggiungere facilmente i principali servizi e le vie di comunicazione, rendendo questa soluzione abitativa particolarmente comoda per chi desidera vivere in una zona ben servita.

Mostra tutto

Nelle vicinanze

Trasporto pubblico Trasporto pubblico
Reggio di Calabria Omeca
Reggio di Calabria Omeca
580 m
Reggio di Calabria Centrale
Reggio di Calabria Centrale
1,7 Km
Viale A. Moro, 24
Viale A. Moro, 24
120 m
Viale Aldo Moro, 21 (s/n)
Viale Aldo Moro, 21 (s/n)
140 m
Reggio Di Calabria Aeroporto
Reggio Di Calabria Aeroporto
2,7 Km
Ricariche auto elettriche Ricariche auto elettriche
Reggio Calabria Caprera | EnelX
1,6 Km
Reggio Gelsomino | EnelX
2,0 Km
Reggio di Calabria Correttori | EnelX
2,0 Km
Reggio Calabria Terme Romane | EnelX
2,2 Km
Reggio Calabria Monumento ai Caduti | EnelX
2,4 Km
Scuole Scuole
Scuola Primaria e dell'Infanza "Collodi"
410 m
Scuola Media "Alvaro-Gebbione"
510 m
Istituto Comprensivo Galluppi-Collodi-Bevacqua
720 m
IPSIA "Enrico Fermi"
1,1 Km
Istituto Superiore di Scienze Religiose
1,3 Km
Farmacia Farmacia
Farmacia Sant'Agata
1,4 Km
Farmacia Arcudi
2,0 Km
Farmacia Centrale
2,1 Km
Farmacia Scerra Domenica
2,4 Km
Faramacia Spirito Santo
2,5 Km
Ospedali Ospedali
Ospedale "Morelli"
1,3 Km
Ospedali
1,3 Km
Supermercati Supermercati
Ipercoop
470 m
Spaccio Alimentare
600 m
Lidl
860 m
Supermercato MD
1,4 Km
Supermercato Pam
1,5 Km
Negozi Negozi
Prénatal
480 m
Le delizie di Nicolò Anna il panificio di Nicolò Giuseppina
1,8 Km
Upim
2,2 Km
OVS
2,4 Km
Bar Bar
Torrefazione Crucitti
140 m
Lotus Cafè
470 m
Les FoliesCafè
1,7 Km
Bar Garibaldi
1,7 Km
Caridi
1,9 Km
Ristoranti Ristoranti
Trattoria del Pesce Fresco
1,8 Km
La Cantina del Macellaio
1,8 Km
Pizzeria La Capricciosa
1,9 Km
Al Tempietto da Ficara
2,2 Km
Sushi
2,5 Km
Mostra tutto

Caratteristiche

Rif.:
61176828
Piano:
2 di 5 con ascensore (Piano medio)
Posti auto:
1
Balconi:
2
Camere da letto:
3
Arredamento:
Assente
Mostra tutto
Prezzo Prezzo
€ 109.000
Rata mutuo Rata mutuo
€ 517 / mese
Spese annue Spese annue
€ 780
Proponi il tuo prezzoProponi il tuo prezzo

Classe Energetica

G
G
G
G
G
G
G
G
G
EP globale non rinnovabile:
100.00 kW h/m² anno
EP globale rinnovabile:
100.00 kW h/m² anno
EP invernale del fabbricato:
EP estiva del fabbricato:
Anno di costruzione:
1967
Riscaldamento:
Autonomo
Tipo impianto:
A radiatori
Tipo alimentazione:
Metano

Ti interessa visionare l'immobile?

Fissa un appuntamento  Fissa un appuntamento

Richiedi informazioni

Clicca su Leggi per aprire l'informativa
* Questi campi sono obbligatori

Calcola il tuo mutuo

Semplice e senza impegno
Anticipo

( % )
Mutuo

( % )

pochi semplici passi

inserisci i tuoi dati
Questionario completato
Grazie per aver richiesto un appuntamento senza impegno con un nostro Consulente del Credito e Assicurativo.

Hai inserito correttamente tutti i dati necessari e a breve riceverai una e-mail con un link da convalidare per inviare i tuoi dati.
Affiliato
Studio Reggio Calabria Sud Srl
Viale Aldo Moro, 101A/B 89129 Reggio Di Calabria (RC)

Il nostro staff


  • Giovanni Bottafava
    Affiliato

  • Annamaria Mauro
    Coordinatrice

  • Francesco Calafiore
    Collaboratore

  • Mario Calzone
    Collaboratore

  • Martina Musolino
    Coordinatrice
Viale Aldo Moro, 101A/B 89129 Reggio Di Calabria (RC)
Zona: Reggio Calabria - Sud
Mostra su mappa
Orari: dal lunedì al venerdì 8:30-13:00/15:00-19:00; sabato 8:30 - 13:00
Affiliato
Studio Reggio Calabria Sud Srl
Viale Aldo Moro, 101A/B 89129 Reggio Di Calabria (RC)

2026 Tecnocasa Franchising S.p.A. - P. IVA 08365160152 - Via Monte Bianco 60/A 20089 Rozzano (MI). Ogni agenzia ha un proprio titolare ed è autonoma. Privacy policy | Policy utilizzo | Cookie policy