Trilocale in vendita

Reggio Di Calabria, Via Enzo Misefari - Reggio Calabria Sud
€ 65.000
3 locali 3 locali
92 Mq 92 Mq
1 bagno 1 bagno

Trilocale in vendita

Reggio Di Calabria, Via Enzo Misefari - Reggio Calabria Sud

Descrizione annuncio

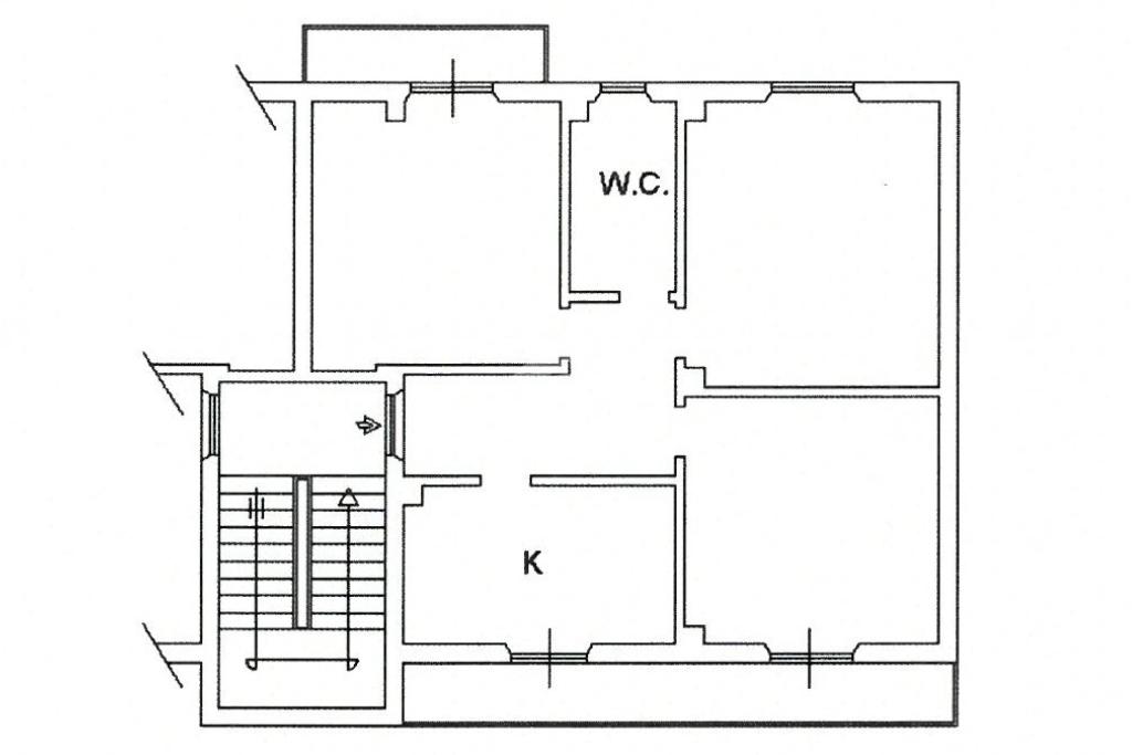
VIA ENZO MISEFARI traversa del VIALE ALDO MORO, appartamento di 92 mq catastali situato al primo piano di un edificio di tre livelli.

L'immobile offre un'accogliente zona giorno all'ingresso, ideale per momenti di relax e convivialità, tre camere da letto garantiscono spazio e comfort mentre il bagno dotato di box doccia è funzionale e ben organizzato.
I due balconi, uno dei quali dotato di zona lavanderia, offrono una piacevole vista mare.

L'immobile è stato di recente, oggetto di ristrutturazione totale, presenta infissi in pvc con doppio vetrocamera, pavimenti in grés porcellanato effetto legno.
La presenza dell'aria condizionata assicura un ambiente confortevole in ogni stagione.

Impianto di riscaldamento assente.

Completa la proprietà un comodo posto auto all'interno della corte condominiale, una caratteristica preziosa per chi vive in città.

L'appartamento, situato in una zona ben servita, rappresenta una soluzione abitativa pratica e ben collegata, perfetta per chi cerca una residenza funzionale e ben posizionata.

Mostra tutto

Nelle vicinanze

Trasporto pubblico Trasporto pubblico
Reggio di Calabria Omeca
Reggio di Calabria Omeca
440 m
Reggio di Calabria Centrale
Reggio di Calabria Centrale
1,8 Km
Viale Aldo Moro, 85 (s/n)
Viale Aldo Moro, 85 (s/n)
110 m
Viale A.Moro trav. Benedetto
Viale A.Moro trav. Benedetto
120 m
Reggio Di Calabria Aeroporto
Reggio Di Calabria Aeroporto
2,7 Km
Ricariche auto elettriche Ricariche auto elettriche
Reggio Calabria Caprera | EnelX
1,7 Km
Reggio Gelsomino | EnelX
2,2 Km
Reggio di Calabria Correttori | EnelX
2,2 Km
Reggio Calabria Terme Romane | EnelX
2,4 Km
Reggio Calabria Monumento ai Caduti | EnelX
2,6 Km
Scuole Scuole
Scuola Primaria e dell'Infanza "Collodi"
350 m
Scuola Media "Alvaro-Gebbione"
710 m
Istituto Comprensivo Galluppi-Collodi-Bevacqua
960 m
IPSIA "Enrico Fermi"
1,3 Km
Istituto Superiore di Scienze Religiose
1,6 Km
Farmacia Farmacia
Farmacia Sant'Agata
1,5 Km
Farmacia Arcudi
2,2 Km
Farmacia Centrale
2,2 Km
Farmacia Scerra Domenica
2,6 Km
Farmacia Fata Morgana
2,7 Km
Ospedali Ospedali
Ospedale "Morelli"
1,5 Km
Ospedali
1,6 Km
Supermercati Supermercati
Spaccio Alimentare
720 m
Ipercoop
720 m
Lidl
950 m
Supermercato MD
1,6 Km
Qui Conviene
1,7 Km
Negozi Negozi
Prénatal
730 m
Le delizie di Nicolò Anna il panificio di Nicolò Giuseppina
1,9 Km
Upim
2,4 Km
OVS
2,5 Km
Bar Bar
Torrefazione Crucitti
250 m
Lotus Cafè
720 m
Les FoliesCafè
1,8 Km
Bar Garibaldi
1,9 Km
Caridi
2,0 Km
Ristoranti Ristoranti
Trattoria del Pesce Fresco
1,9 Km
La Cantina del Macellaio
2,0 Km
Pizzeria La Capricciosa
2,0 Km
Al Tempietto da Ficara
2,4 Km
Pizzeria Spaccanapoli
2,7 Km
Mostra tutto

Caratteristiche

Rif.:
61152637
Piano:
1 di 3 (Piano basso)
Posti auto:
1
Balconi:
2
Camere da letto:
3
Arredamento:
Assente
Mostra tutto
Prezzo Prezzo
€ 65.000
Rata mutuo Rata mutuo
€ 307 / mese
Spese annue Spese annue
€ 240
Proponi il tuo prezzoProponi il tuo prezzo

Classe Energetica

G
G
G
G
G
G
G
G
G
EP globale non rinnovabile:
100.00 kW h/m² anno
EP globale rinnovabile:
100.00 kW h/m² anno
EP invernale del fabbricato:
EP estiva del fabbricato:
Anno di costruzione:
1966
Riscaldamento:
Autonomo
Tipo impianto:
A radiatori
Tipo alimentazione:
Metano

Ti interessa visionare l'immobile?

Fissa un appuntamento  Fissa un appuntamento

Richiedi informazioni

Clicca su Leggi per aprire l'informativa
* Questi campi sono obbligatori

Calcola il tuo mutuo

Semplice e senza impegno
Anticipo

( % )
Mutuo

( % )

pochi semplici passi

inserisci i tuoi dati
Questionario completato
Grazie per aver richiesto un appuntamento senza impegno con un nostro Consulente del Credito e Assicurativo.

Hai inserito correttamente tutti i dati necessari e a breve riceverai una e-mail con un link da convalidare per inviare i tuoi dati.
Affiliato
Studio Reggio Calabria Sud Srl
Viale Aldo Moro, 101A/B 89129 Reggio Di Calabria (RC)

Il nostro staff


  • Giovanni Bottafava
    Affiliato

  • Annamaria Mauro
    Coordinatrice

  • Francesco Calafiore
    Collaboratore

  • Mario Calzone
    Collaboratore

  • Martina Musolino
    Coordinatrice
Viale Aldo Moro, 101A/B 89129 Reggio Di Calabria (RC)
Zona: Reggio Calabria - Sud
Mostra su mappa
Orari: dal lunedì al venerdì 8:30-13:00/15:00-19:00; sabato 8:30 - 13:00
Affiliato
Studio Reggio Calabria Sud Srl
Viale Aldo Moro, 101A/B 89129 Reggio Di Calabria (RC)

2025 Tecnocasa Franchising S.p.A. - P. IVA 08365160152 - Via Monte Bianco 60/A 20089 Rozzano (MI). Ogni agenzia ha un proprio titolare ed è autonoma. Privacy policy | Policy utilizzo | Cookie policy