Quadrilocale in vendita

Reggio Di Calabria, Via Intermedia Abate Sant' Elia - Ravagnese
€ 125.000
4 locali 4 locali
127 Mq 127 Mq
2 bagni 2 bagni

Quadrilocale in vendita

Reggio Di Calabria, Via Intermedia Abate Sant' Elia - Ravagnese

Descrizione annuncio

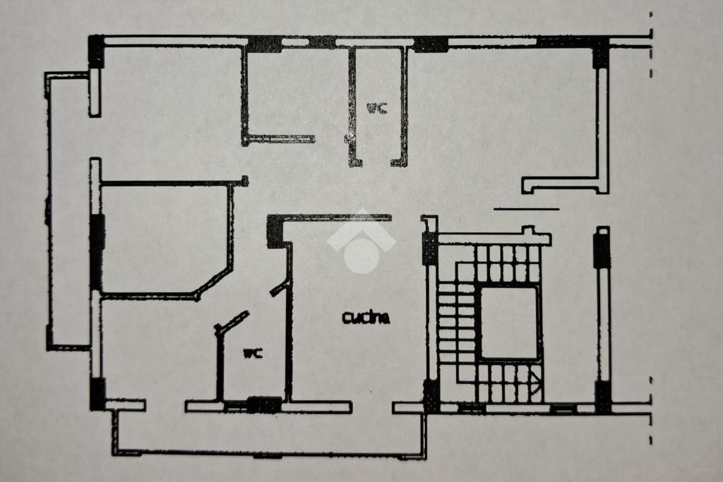
Via Intermedia Sant'Elia, Ravagnese, appartamento di 138 mq catastali situato al primo piano di uno stabile a 5 elevazioni dotato di ascensore.

L'immobile è composto da ingresso su disimpegno, cucina abitabile, ampio soggiorno, tre camere da letto, doppi servizi, ripostiglio e due balconi.

Internamente presenta infissi in pvc e doppio vetro camera, riscaldamenti alimentati a metano tramite caldaia, condizionatori in tutti gli ambienti e impianto di allarme. L'appartamento è altresì servito dall'autoclave condominiale che consente un servizio idrico efficiente.

Completa la proprietà un posto auto all'interno della corte condominiale.

La zona zona in cui è ubicato l'immobile è ricca di servizi e attività commerciali facili da raggiungere anche a piedi, inoltre è situato in prossimità degli svincoli autostradali.

Mostra tutto

Nelle vicinanze

Trasporto pubblico Trasporto pubblico
Reggio di Calabria San Gregorio
Reggio di Calabria San Gregorio
1,9 Km
Reggio di Calabria Omeca
Reggio di Calabria Omeca
2,5 Km
Via S.Elia, 139A Chiesa (s/n)
Via S.Elia, 139A Chiesa (s/n)
260 m
Via S.Elia, 141 Prima CHIESA (n/s)
Via S.Elia, 141 Prima CHIESA (n/s)
270 m
Reggio Di Calabria Aeroporto
Reggio Di Calabria Aeroporto
1,0 Km
Scuole Scuole
Scuola dell'Infanzia Nosside
280 m
Scuola Media Nosside-Pythagoras
600 m
Scuola Elementare e Media Pythagoras
610 m
Scuola Primaria "S.Gregorio"
1,4 Km
Scuole
1,7 Km
Farmacia Farmacia
Farmacia Sant'Agata
1,3 Km
Dott.ssa Borruto
2,2 Km
Ospedali Ospedali
Ospedale "Morelli"
2,7 Km
Ospedali
2,8 Km
Supermercati Supermercati
Supermercato MD
1,7 Km
Lidl
1,9 Km
Supermercato Pam
1,9 Km
Spaccio Alimentare
2,1 Km
Verdeblu
2,3 Km
Negozi Negozi
Prénatal
2,4 Km
Bar Bar
Lotus Cafè
2,4 Km
Torrefazione Crucitti
2,8 Km
Ristoranti Ristoranti
Pizzeria Settimo Cielo
1,5 Km
Royal Garden
1,8 Km
Windy Hill
2,1 Km
La Giara
2,3 Km
Villa Blanche Ricevimenti
2,8 Km
Mostra tutto

Caratteristiche

Rif.:
61127216
Piano:
1 di 5 con ascensore (Piano basso)
Posti auto:
1
Balconi:
2
Camere da letto:
3
Arredamento:
Assente
Mostra tutto
Prezzo Prezzo
€ 125.000
Rata mutuo Rata mutuo
€ 590 / mese
Spese annue Spese annue
€ 564
Proponi il tuo prezzoProponi il tuo prezzo

Classe Energetica

F
F
F
F
F
F
F
F
F
EP globale non rinnovabile:
65.20 kW h/m² anno
EP globale rinnovabile:
0.00 kW h/m² anno
EP invernale del fabbricato:
EP estiva del fabbricato:
Anno di costruzione:
2004
Riscaldamento:
Autonomo
Tipo impianto:
A radiatori
Tipo alimentazione:
Metano

Ti interessa visionare l'immobile?

Fissa un appuntamento  Fissa un appuntamento

Richiedi informazioni

Clicca su Leggi per aprire l'informativa
* Questi campi sono obbligatori

Calcola il tuo mutuo

Semplice e senza impegno
Anticipo

( % )
Mutuo

( % )

pochi semplici passi

inserisci i tuoi dati
Questionario completato
Grazie per aver richiesto un appuntamento senza impegno con un nostro Consulente del Credito e Assicurativo.

Hai inserito correttamente tutti i dati necessari e a breve riceverai una e-mail con un link da convalidare per inviare i tuoi dati.
Affiliato
Studio Reggio Calabria Sud Srl
Viale Aldo Moro, 101A/B 89129 Reggio Di Calabria (RC)

Il nostro staff


  • Giovanni Bottafava
    Affiliato

  • Annamaria Mauro
    Coordinatrice

  • Francesco Calafiore
    Collaboratore

  • Mario Calzone
    Collaboratore

  • Martina Musolino
    Coordinatrice
Viale Aldo Moro, 101A/B 89129 Reggio Di Calabria (RC)
Zona: Reggio Calabria - Sud
Mostra su mappa
Orari: dal lunedì al venerdì 8:30-13:00/15:00-19:00; sabato 8:30 - 13:00
Affiliato
Studio Reggio Calabria Sud Srl
Viale Aldo Moro, 101A/B 89129 Reggio Di Calabria (RC)

2025 Tecnocasa Franchising S.p.A. - P. IVA 08365160152 - Via Monte Bianco 60/A 20089 Rozzano (MI). Ogni agenzia ha un proprio titolare ed è autonoma. Privacy policy | Policy utilizzo | Cookie policy